Exceptional Apartment - Place De l'Estrapade
Stunning 46m² residence situated on the iconic Place de l'Estrapade—a location immortalized by the hit series "Emily in Paris." Just steps from the majestic Pantheon, in one of the capital's most sought-after neighborhoods, this apartment enjoys a privileged location combining historical prestige and the sweetness of Parisian living. The 5th arrondissement, with its historic bookshops, lively cafés, and picturesque streets, offers an exceptional living environment.
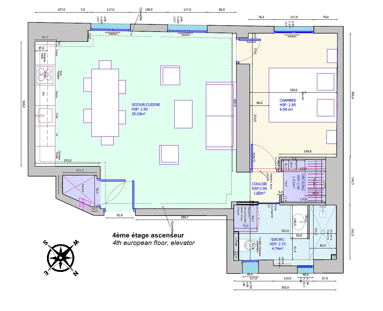
Brightness and Tranquility
Located on the 4th floor with elevator access, this exceptional property benefits from a southern exposure. Its large windows open onto a tree-lined courtyard, offering an atmosphere that is both typically Parisian and surprisingly peaceful. The 2.90m ceiling height accentuates the sense of space and volume.
Refined Layout
Completely renovated with high-end materials, the apartment consists of:
- A living-dining room with open kitchen, bathed in natural light
- A quiet bedroom with adjoining dressing area
- A spacious shower room with toilet and windows ensuring natural light and ventilation
- Option to purchase furnished
Additional Features
- Cellar in the basement
- Concierge service in the building
- Well-managed fees (€160/month)
- Building renovation work already approved and fully funded
This exceptional pied-à-terre represents a rare opportunity to acquire a property in one of Paris' most prestigious neighborhoods, at an address that has become iconic.
Fees of 5% including tax included in the sale price payable by the purchaser, i.e. a price excluding fees of 758,000 euros.
Inquire About This Property












Similar Listings
Don't Find What You're Looking For?
Contact us to learn more about our personalized search services to see all the properties available on the market.
Reach Out Today!

Social Cookies
Social Cookies are used to enable you to share pages and content you find interesting throughout the website through third-party social networking or other websites (including, potentially for advertising purposes related to social networking).