Sold
Rue HoudonParis, 18th Arrondissement€1,095,000
RARE OPPORTUNITY! Exclusive listing of PARIS PROPERTY GROUP
Two bedrooms / one bathroom with panoramic views of Paris:
Located in the heart of charming Montmartre, this quiet apartment on the 5th floor with elevator and panoramic view of Paris is not to be missed. The beautiful 18th century building is in impeccable condition, set in a large courtyard with trees.
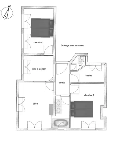
Two apartments were combined to form this 60m² apartment, creating a unified space with nine generous windows and views in all four directions and primarily facing South and South-West. The unobstructed views of the city including the Eiffel Tower are breathtaking. The apartment has all of its original period features, including a fireplace, original wood floors and crown moldings throughout the apartment.
The floor plan is star-shaped with an entrance off the foyer to each of the rooms. Two large bedrooms each with large closets are separated from each other for privacy, with a generous corner living room with fireplace and separate dining room that can be opened to the living room. The bathroom features a double sink and a standard size bathtub. The kitchen is bright and efficient. and enjoys a large window with view of the courtyard. The separate ½ bath is large and accommodates a clever nook for laundry.
The property is in excellent condition, with double-glazed windows throughout, updated electricity, and gas heating. The building manager is on-site. Home owner fees including elevator and janitor included are approximately 220 €/month. The apartment includes a private cellar for storage.
Nothing in Paris matches the friendly spirit of Montmartre, the cobbled streets and unmatched views, lively shops, cafes and markets. Short walk to metro Abbesses and the charming and iconic rue des Martyrs. Showings by appointment.
Inquire About This Property











Don't Find What You're Looking For?
Contact us to learn more about our personalized search services to see all the properties available on the market.
Reach Out Today!
Social Cookies
Social Cookies are used to enable you to share pages and content you find interesting throughout the website through third-party social networking or other websites (including, potentially for advertising purposes related to social networking).