Active
Rue des Quatre Vents | OFF MARKETParis, 6th Arrondissement€1,680,000
A Quiet Life at the Heart of Saint-Germain
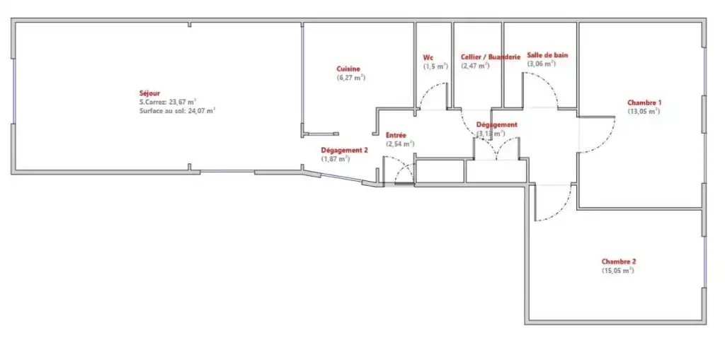
This is the Paris you always imagined. A calm street between Odéon and Saint-Sulpice, the Luxembourg Gardens ten minutes away, a classic Haussmannian building with an elevator. On the third floor, a beautifully renovated 2-bedroom apartment, 72.61 m², ceilings at 3.5 meters, light all day.
The living and dining room is anchored by original herringbone parquet and a black marble fireplace. A sculptural glass-panel partition opens to a fully equipped renovated kitchen. Two proper bedrooms, a shower room, guest WC, laundry in unit, and two basement storage cellars.
Fees of 3.5% including tax included in the sale price payable by the purchaser, i.e. a price excluding fees of 1,619,671 euros.
Inquire About This Property













Don't Find What You're Looking For?
Contact us to learn more about our personalized search services to see all the properties available on the market.
Reach Out Today!
Social Cookies
Social Cookies are used to enable you to share pages and content you find interesting throughout the website through third-party social networking or other websites (including, potentially for advertising purposes related to social networking).