Sold
Rue de BuciParis, 6th Arrondissement€662,100
An oasis of calm in the heart of the 6th, with the option of adding a terrace
At the center of rue de Seine, rue de Buci and rue Mazarine, in the heart of the sixth arrondissement lies this oasis of calm at the top of a building, hidden away. An elevator lifts you up to an open view over roof tops where the bustle of the street seems far away, but in reality, is just steps away.
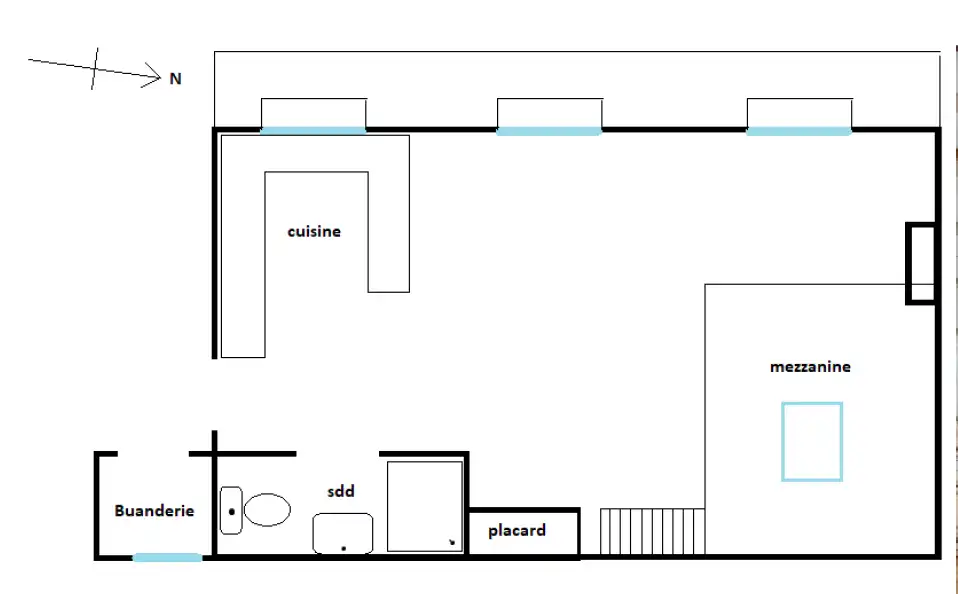
This large sunny apartment of approximately 37 m2 features floor to ceiling windows with the possibility of pushing the balconets out and creating a terrace, as some neighbors have already done. Historic beams give charm to the highly functional space, and a sleeping area has been lofted into the raised, beamed ceiling vault above. The mezzanine is reached by a stairway and features a window in the vaulted ceiling.
The main living area also features a Murphy bed which can serve as the main sleeping area or used for guests. The property has a fireplace, laundry, and lots of storage. The building has been recently refurbished so no major expenses are planned.
This is the perfect pied-a-terre in the heart of Paris' prestigious Saint Germain area. Quiet, but in the center of it all.
Inquire About This Property








Don't Find What You're Looking For?
Contact us to learn more about our personalized search services to see all the properties available on the market.
Reach Out Today!
Social Cookies
Social Cookies are used to enable you to share pages and content you find interesting throughout the website through third-party social networking or other websites (including, potentially for advertising purposes related to social networking).